
solgt



solgt
Mølletoften 4, 9260 Gistrup
SOLGT PÅ 63 DAGE - LIGNENDE BOLIG SØGES TIL KØBERE I MIT KØBERKARTOTEK!
En sand fornøjelse af en indflytningsklar familievilla
Ejendommen ligger perfekt placeret som et trygt og nemt udgangspunkt til de mange daglige indslag
som skole, indkøb og idrætsfaciliteter. Villaen i sig selv er et mindst lige så perfekt udgangspunkt for det
gode familieliv. Huset er nemlig sat flot i stand og lige til at flytte ind i, og indretningen er god og
gennemtænkt.
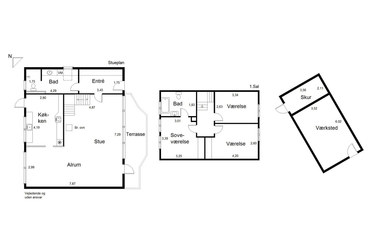
Stueplan er indrettet med et nydeligt og velfungerende køkken, som ligger i åben forbindelse med
alrummet og stuen. Fra både køkken og stue er der udgang til terrasser i den nemme have. Og fra stuen
fører en elegant trappe op til første sal. Stueplan byder desuden på gode opbevaringsmuligheder i
entréen samt vaskefaciliteter i et flot, renoveret badeværelse.
På første sal er der også et badeværelse – endda med badekar til de længere hyggestunder, eller til når
de yngste skal have lidt hjælp med vand og sæbe. Heroppe får du også tre værelser og yderligere gode
opbevaringsmuligheder i indbyggede skabe.
Endvidere god garage som fungerer som redskabsrum og værksted, og nem og overkommelig have.
Gistrup byder på et spændende handelsliv med egen slagter, bager, supermarkeder m.v. Derudover vil
du opleve en by med et spændende forenings- og kulturliv. Vil du gå til spejder, gymnastik, motionscenter,
fodbold eller golf - så har Gistrup det hele. Ud over et væld af foreninger, har byen stor og god skole, flere
børnehaver og dagplejepladser. Gistrup vil I fremtiden endvidere være satelitbyen til Nordjyllands nye
supersygehus. Dette vil helt klart være medvirkende til at mange nye familier vil søge mod Gistrup, så de
kan bo godt og tæt på deres kommende arbejdsplads.
En spændende bolig med masser af muligheder og rigtig godt førstegangskøb til eks. børnefamilien.
Kontakt mig for en fremvisning på tlf. 6115 1513
Coronavirussen skal tages alvorligt, og jeg følger myndighedernes anvisninger, og for at minimere
risikoen for smitte med coronavirus har jeg valgt at tage nye metoder i brug:
- Åbent hus arrangementer foregår nu som 1 - 1 fremvisninger, hvor man tilmelder sig 1 hold af gangen
- Jeg har håndsprit med til alle fremvisninger og åbne huse
- Jeg undlader at give hånd og holder god afstand
- Jeg er klar til at hjælpe både på telefon, mail, og videomøder / facetime
En sand fornøjelse af en indflytningsklar familievilla
Ejendommen ligger perfekt placeret som et trygt og nemt udgangspunkt til de mange daglige indslag
som skole, indkøb og idrætsfaciliteter. Villaen i sig selv er et mindst lige så perfekt udgangspunkt for det
gode familieliv. Huset er nemlig sat flot i stand og lige til at flytte ind i, og indretningen er god og
gennemtænkt.
Stueplan er indrettet med et nydeligt og velfungerende køkken, som ligger i åben forbindelse med
alrummet og stuen. Fra både køkken og stue er der udgang til terrasser i den nemme have. Og fra stuen
fører en elegant trappe op til første sal. Stueplan byder desuden på gode opbevaringsmuligheder i
entréen samt vaskefaciliteter i et flot, renoveret badeværelse.
På første sal er der også et badeværelse – endda med badekar til de længere hyggestunder, eller til når
de yngste skal have lidt hjælp med vand og sæbe. Heroppe får du også tre værelser og yderligere gode
opbevaringsmuligheder i indbyggede skabe.
Endvidere god garage som fungerer som redskabsrum og værksted, og nem og overkommelig have.
Gistrup byder på et spændende handelsliv med egen slagter, bager, supermarkeder m.v. Derudover vil
du opleve en by med et spændende forenings- og kulturliv. Vil du gå til spejder, gymnastik, motionscenter,
fodbold eller golf - så har Gistrup det hele. Ud over et væld af foreninger, har byen stor og god skole, flere
børnehaver og dagplejepladser. Gistrup vil I fremtiden endvidere være satelitbyen til Nordjyllands nye
supersygehus. Dette vil helt klart være medvirkende til at mange nye familier vil søge mod Gistrup, så de
kan bo godt og tæt på deres kommende arbejdsplads.
En spændende bolig med masser af muligheder og rigtig godt førstegangskøb til eks. børnefamilien.
Kontakt mig for en fremvisning på tlf. 6115 1513
Coronavirussen skal tages alvorligt, og jeg følger myndighedernes anvisninger, og for at minimere
risikoen for smitte med coronavirus har jeg valgt at tage nye metoder i brug:
- Åbent hus arrangementer foregår nu som 1 - 1 fremvisninger, hvor man tilmelder sig 1 hold af gangen
- Jeg har håndsprit med til alle fremvisninger og åbne huse
- Jeg undlader at give hånd og holder god afstand
- Jeg er klar til at hjælpe både på telefon, mail, og videomøder / facetime
Torben Svendsen
Ejendomsmægler, MDE og Indehaver
Skriv dig op i mit køberkartotek
Så finder vi sammen den rigtige vej til dit nye hjem.



